Industrial
Property ID: VNM-P-003WIEindustrial
Mapletree | Logistics Park - VSIP Bac Ninh - Multiple phases
VSIP Bac Ninh, Phu Chan commune, Tu Son Bac Ninh
Tu Son Ward, Bac Ninh Province
USD 3 per m²
- Size7,300 m²
- Description
- Building Information
- Location
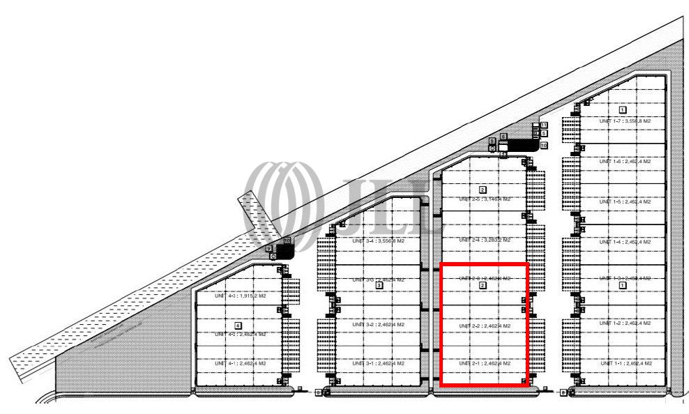
- Floor plan
- Contact us
Description
Mapletree Logistics Park Bac Ninh comprises 18 blocks of single-storey Grade A warehouses with mezzanine offices. Situated within Vietnam-Singapore Industrial Park Bac Ninh, the property is well connected to Hanoi, Noi Bai International Airport, Hai Phong Seaport and the Vietnam-China border via a comprehensive highway system.
The project was divided into 5 phases and was built from 2018 to 2021







