Office/Commercial
Property ID: VNM-P-003BKXoffice
Lotte Mall Hanoi - Office Tower
Vo Chi Cong
Tay Ho Ward, Hanoi City
USD 32 per m²
- Size555 - 3,320 m²
- Description
- Building Information
- Location
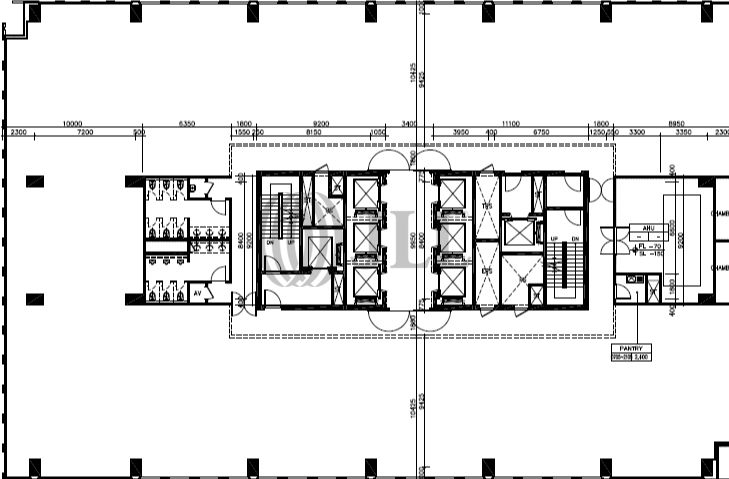
- Floor plans
- Contact us
Description
Lotte Mall Hanoi - Office Tower is a notable upcoming Grade-A office for lease by Lotte Properties, estimated to welcome new occupiers by Q3/2023. This mix-used development is located in Tay Ho District, the new promising business area of Hanoi.
The offered space is from 6F to 21F, amounting to 21,000 sqm in total. Especially, the building offers an extremely spacious 6-floor parking area. The project is an ideal home for many international and domestic firms seeking excellent quality, prime location with excellent transportation to Noi Bai International Airport and convenience of easy access to a shopping mall, entertainment, hotel, and serviced apartment operated by Lotte Group in the same projects.












