Khu công nghiệp
Mã dự án: VNM-P-003WIEKhu công nghiệp
Mapletree | Logistics Park - VSIP Bac Ninh - Multiple phases
Khu công nghiệp VSIP Bắc Ninh, xã Phù Chẩn, thành phố Từ Sơn, tỉnh Bắc Ninh
Tu Son Ward, Tỉnh Bắc Ninh
3 USD Trên m²/tháng
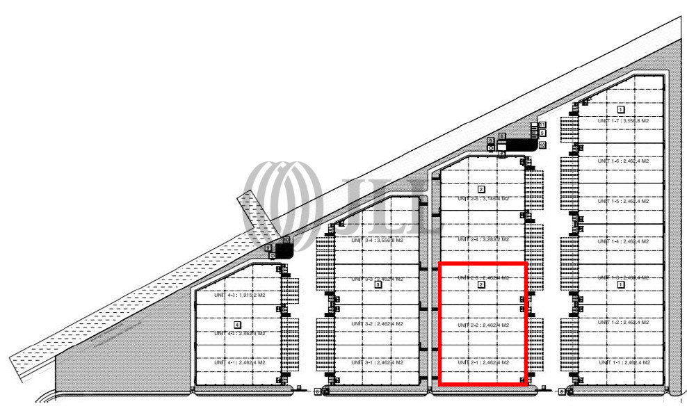
- Diện tích (M2)7.300 m²
- Mô tả dự án
- Diện tích chào thuê
- Vị trí
- Bản vẽ mặt bằng
- Liên hệ
Mô tả dự án
Mapletree Logistics Park Bac Ninh comprises 18 blocks of single-storey Grade A warehouses with mezzanine offices. Situated within Vietnam-Singapore Industrial Park Bac Ninh, the property is well connected to Hanoi, Noi Bai International Airport, Hai Phong Seaport and the Vietnam-China border via a comprehensive highway system.
The project was divided into 5 phases and was built from 2018 to 2021







