
Khu công nghiệp
Mã dự án: VNM-P-003WGWKhu công nghiệp
KTG | Yen Phong Industrial Center Giai đoạn 1
Khu công nghiệp Yên Phong
Yen Phong Commune, Tỉnh Bắc Ninh
Liên hệ để biết giá
- Mô tả dự án
- Diện tích chào thuê
- Vị trí
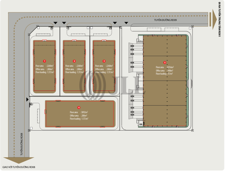
- Bản vẽ mặt bằng
- Liên hệ
Mô tả dự án
Yen Phong Industrial Zone – Bac Ninh has a total area of 658 ha, is the modern and synchronous industrial zone in Northern Vietnam. The project has attracted a large amount of FDI (10 billion USD). KTG Industrial Yen Phong I has a perfect utility system, next to the industrial park is an urban area of 51.6ha, which provides tens of thousands of accommodation for workers and professionals working in the industrial park and utility services, meet the needs of living and settling for workers