Văn phòng
Mã dự án: VNM-P-003U0HVăn phòng
36 Cát Linh
36 Cát Linh
Dong Da Ward, Hà Nội
28 USD - 56 USD Trên m²/tháng
- Diện tích (M2)113 - 19.262 m²
- Mô tả dự án
- Diện tích chào thuê
- Vị trí
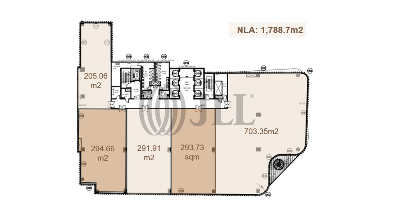
- Bản vẽ mặt bằng
Mô tả dự án
36 Cát Linh là dự án phức hợp bán lẻ và văn phòng cho thuê tọa lạc tại đường Cát Linh. Được thiết kế với cảm hứng đến từ hình ảnh ruộng bậc thang của Việt Nam, tòa nhà với quy mô 8 tầng nổi và 4 tầng hầm cung cấp cho thị trường Hà Nội 16,000m2 diện tích văn phòng cho thuê trải dài từ tầng 2 đến tầng 8 của tòa nhà. Với vị trí đắc địa, nằm gần hệ thống tàu điện ngầm sắp ra mắt của thành phố, cùng chất lượng văn phòng mang tiêu chuẩn đẳng cấp quốc tế, 36 Cát Linh hứa hẹn sẽ là sự lựa chọn hàng đầu cho các khách thuê có nhu cầu tìm kiếm một không gian văn phòng chất lượng cao.




















